8728 Old Courthouse Rd.
Vienna , Virginia 22182

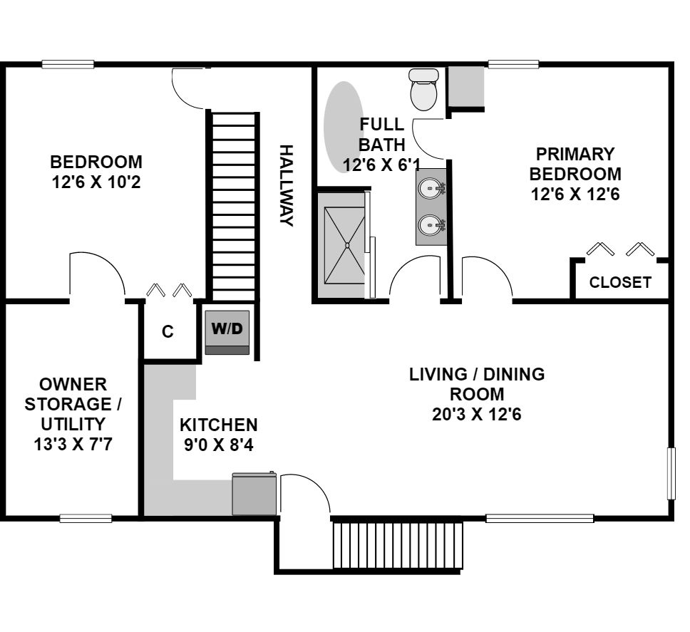
Floor Plan

Basement Apartment

All illustrations and dimensions are approximate and may vary from actual structure. Dimensions have been rounded. All information deemed reliable but not guaranteed.

Map